313/330 Lygon Street, Brunswick East VIC 3057
-
2
-
2
-
1
Stunning easterly views - with Brunswick East at your feet
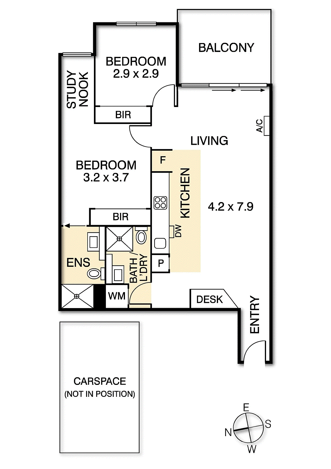
In a premier location this two bedroom two bathroom apartment has freshly painted and new carpets laid. Situated in the exclusive Elvera building lies this outstanding opportunity. Eastern aspect views from a surprisingly quiet private balcony in a highly sought after location, the apartment comprises a modern kitchen with stainless steel appliances and stone bench tops, a European laundry and open plan living and dining area, perfect for entertaining. Two large bedrooms with generous floor to ceiling built in robes, the master bedroom features a study nook and ensuite. Further creature comforts include split system air conditioning and carpet throughout. With shops and restaurants and trendy bars at your fingertips, and the tram to the CBD situated right outside the building, you will be impressed by all that Lygon Street in vibrant sought after East Brunswick has to offer.Adding security access and remote entry underground car space this spacious tidy and practical apartment wont last long and needs to be on your inspection list.
Contact Agent
Price Guide
$680pw / $2955pcm
Available
Saturday 25th April 2026
Bond
$2955.00
Book Inspection
