70 Monash Street, Ascot Vale VIC 3032
-
2
-
1
-
2
Perfect potential in a revered riverside enclave
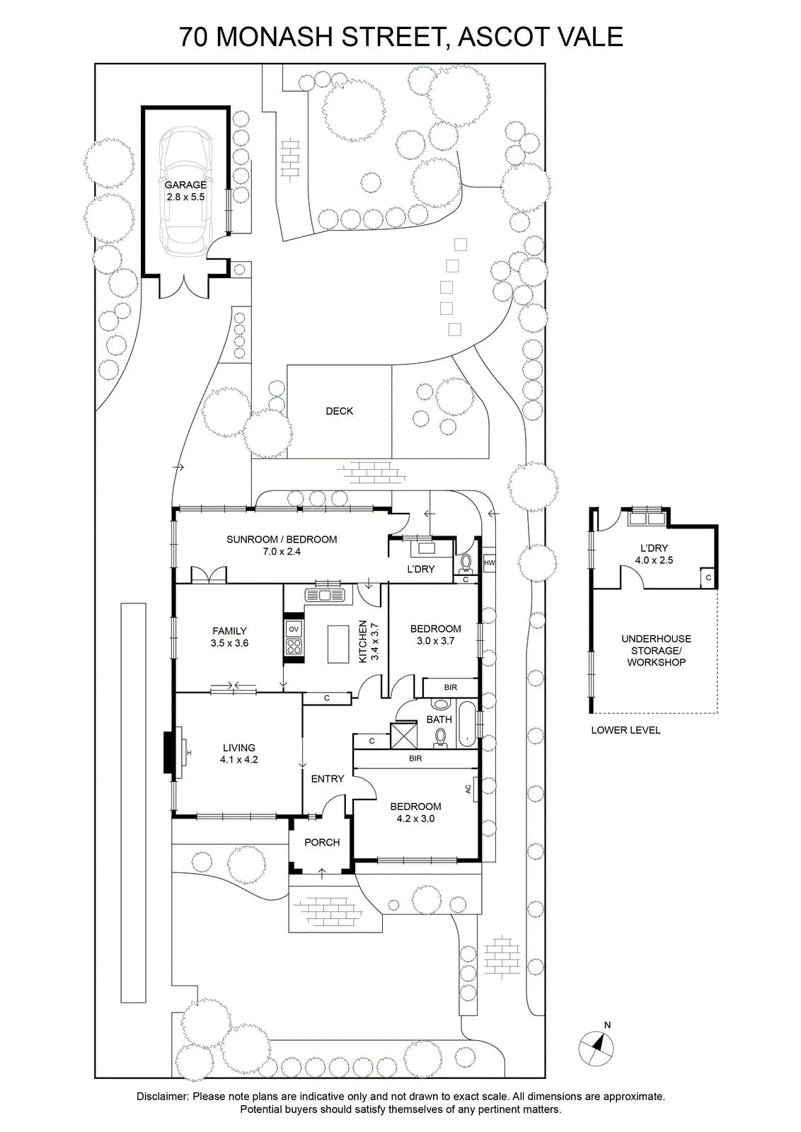
First time offered for sale in over 50 years, the home’s current layout comprises two bedrooms (large main with BIRs) both sharing a neat central bathroom.
Add to this a front lounge, formal dining room and wide sunroom to the rear (potential third bedroom), as well as a functional kitchen with gas cooker.
Other features include ducted heating, split-system a/c, high Art Deco ceilings and internal laundry, plus a substantial north-facing backyard with decking, under-house storeroom and single garage via the side driveway.
Footsteps to Thornbury Park (on the river), Fisher Parade buses and Sugarbeat Cafe, it’s also close to Flemington Racecourse and Riverside Golf Course, along with Union Road eateries, popular schools and Showgrounds Village Shopping Centre.
