38 View Street, Alphington VIC 3078
-
4
-
2
-
4
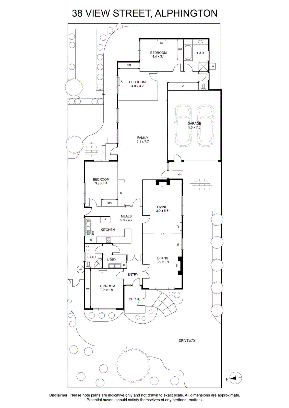
Parkside presence, designed for family living
A wide entrance hall sets the tone, introducing elegant formal living and dining rooms rich with original character. The kitchen and family meals area sit at the heart of the home, while a generous rear family room enjoys a northern outlook over the garden, filling the space with natural light.
Four large bedrooms, three with built-in robes, provide comfortable accommodation, complemented by a central bathroom and a second bathroom with separate bath. The flexible floorplan also allows the formal rooms to adapt as additional bedrooms or work-from-home spaces if needed.
Outside, a low-maintenance landscaped garden creates an easy backdrop to everyday living. A secure garage and side drive provide ample off-street parking for multiple vehicles.
Other features include split-system heating and cooling, gas heating, separate laundry and storage throughout.
Positioned close to Alphington Station, schools, the weekly farmers’ market, local shops and eateries, parks and trails, and just moments from the Eastern Freeway.
Comfortable to move straight into, it also presents exciting scope to further renovate or extend over time, subject to Council approval, making it a home with history, heart and long-term potential.
