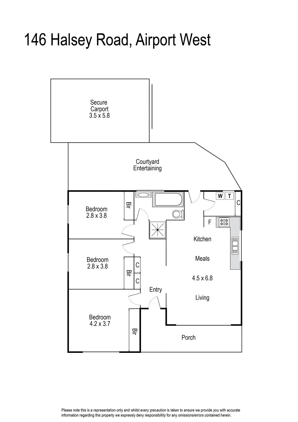
146 Halsey Road, Airport West VIC 3042
-
3
-
1
-
2
Quiet living in prime location
The bright, light-filled open-plan living, meals, and kitchen area provides a welcoming space for everyday living and entertaining. The kitchen features a gas cooktop and ample cupboard and storage space.
Step outside to a low-maintenance courtyard, complemented by a lock-up carport and additional off-street parking via a horseshoe driveway. Additional features include ducted heating and evaporative cooling for year-round comfort.
Ideally located within walking distance to Westfield Shopping Centre, public transport, and St Christopher’s Primary School, with easy freeway access, this home is perfectly positioned. An outstanding opportunity for downsizers, families, and investors alike.
