57 Buckingham Drive, Heidelberg VIC 3084
-
3
-
2
-
2
A quality home beside trails and greenery
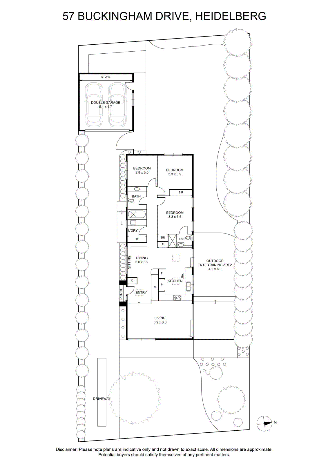
Upon entry, the home opens to a welcoming open-plan kitchen, dining and living zone, highlighted by timber flooring, custom bench seating and excellent natural light. The sleek kitchen features handleless cabinetry, quality appliances and ample storage, forming a practical centrepiece for everyday living and entertaining.
Glass doors extend this central space to a polished concrete outdoor entertaining terrace overlooking the landscaped backyard with grassed area, creating a relaxed setting for family gatherings, outdoor dining and year-round enjoyment.
A step-down separate living room offers a generous second retreat, ideal as a media room, play space or quiet lounge. A separate laundry and central bathroom with floating timber vanity and floor-to-ceiling tiles further enhance functionality.
Three well-proportioned bedrooms include ceiling fans, built-in robes to two, and a private ensuite to the main offering comfortable accommodation for families of all stages. Timber-framed doors and windows throughout contribute to the home’s warmth and character.
Additional features include ducted heating, refrigerated cooling, a double garage with storage, a long driveway providing ample off-street parking, and thoughtful zoning suited to modern family living.
Ideally positioned near parklands and walking trails, the home is moments from Heidelberg and Rosanna train stations, Burgundy Street shopping and dining precinct, and Austin Hospital. Zoned for Viewbank College and Banyule Primary School, and benefitting from the evolving North East Link connection, this address offers outstanding future connectivity and lifestyle convenience.
