1/50 Berembong Drive, Keilor East VIC 3033
-
3
-
1
-
1
Ready to enjoy with opportunity to enhance
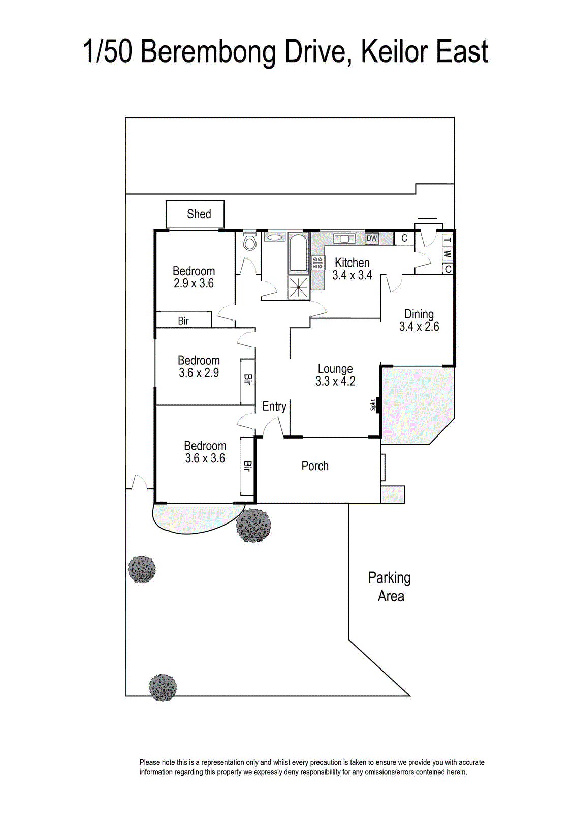
The property features three spacious bedrooms with built-in robes, a bright and inviting lounge adjoining the dining area, and an original yet neat kitchen. The bathroom includes both a separate bath and shower, and a separate toilet.
Additional highlights include timber floors, split system heating and cooling, a private courtyard with a storage shed, and off-street parking.
Perfectly positioned within walking distance to Milleara Road buses, Centreway shops and eateries, local parks, childcare facilities, and a range of schools, with easy access to the Calder Freeway.
