118 Nicholson Street, Brunswick East VIC 3057
-
4
-
3
-
1
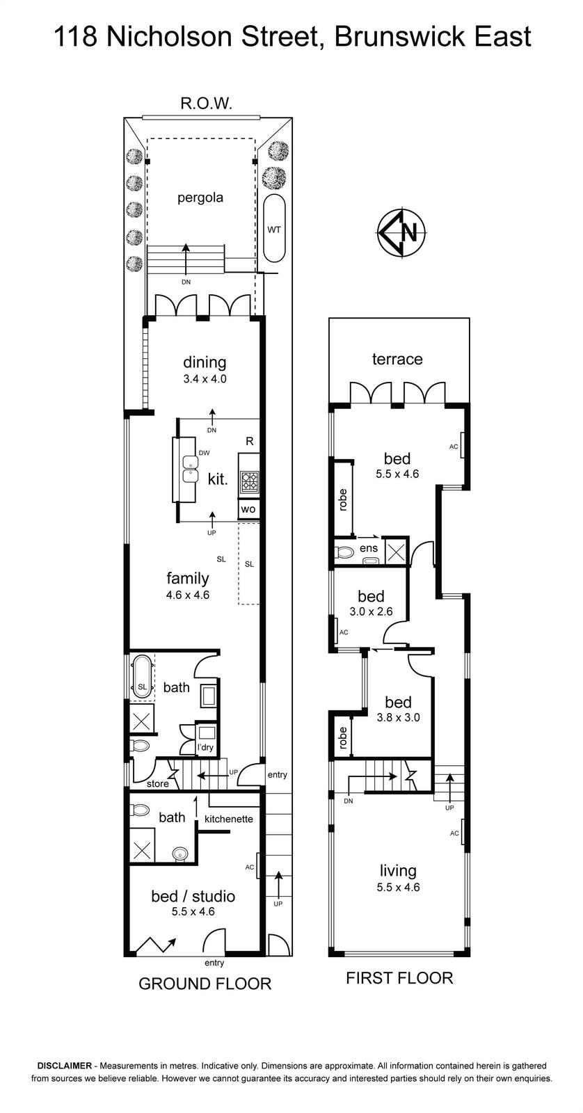
City edge living with self contained apartment
This is essentially two homes in one or home plus separate, fully contained office or commercial space. The main domain showcases three generous bedrooms (extra-large master with its own terrace), as well as a private ensuite and stylish central bathroom complete with clawfoot tub. There are two separate living areas with a separate upstairs lounge and expansive downstairs open-plan living/dining area, both filled with natural light, and a well-appointed kitchen with solid timber benchtops and double butler sink.
Other standouts include split-system heating/cooling and additional gas-log fireplace for year-round comfort, underfloor heating throughout the ground floor living and bathroom, along with hardwood floors, European laundry facilities, built-in robes and under-stair storeroom. Double doors reveal a backyard sanctuary ideal for entertaining with its decking, bluestone paving and secure off-street parking via the rear ROW.
This executive residence offers a unique advantage of the self-contained unit (4th bedroom) with kitchenette, bathroom and its own entrance with a proven record of solid income. City-bound trams (96 tram) at your doorstep along with local buses, popular cafes and East Brunswick Village precinct, it’s also close to acres of parkland, Merri Creek trails, Brunswick East Primary School and Northcote High School (zoned to both).
