533 Waterdale Road, Heidelberg West VIC 3081
-
2
-
1
-
2
Where position and proportion meet endless possibilities located in a residential growth zone
With plenty of scope to draw inspiration from nearby contemporary developments, you could also choose to craft a stunning family residence from scratch, or renovate and extend the existing, blending the classic with the contemporary. (all stca)
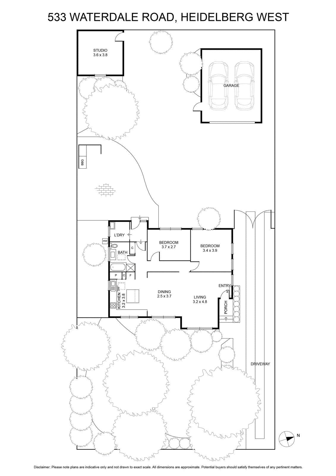
Currently, comfortable spaces including two bedrooms, a central bathroom, and a spacious living-dining stretching out from a stainless-steel equipped kitchen provide an opportunity to live in or let out while you make your decision.
A short walk to local shops, cafes and takeaways, Ramu Parade Park and the bus, schools are within easy reach, Northland Shopping Centre is just a few minutes away, and it's a quick trip to La Trobe Uni, Heidelberg and the Austin Hospital precinct.
For those seeking incredible potential in a highly sought-after location, this is sure to impress!
